複数駅・複数路線が利用可能でアクセス抜群、ビジネスの拠点に最適。
銀座という商業エリアに位置しながら、ビル周辺は落ち着いた街並み。
徒歩圏には飲食店も充実しており、就業時間以外のビジネスシーンも充実。
ビル内に機械式駐車場完備・エレベーター2基など設備面も充実した、堅固な中型オフィスビル。
| 所在地 | 東京都中央区銀座7丁目2番6号(住居表示) |
|---|---|
| アクセス | 東京メトロ銀座線・日比谷線・丸ノ内線 |
| 構造・規模 | 鉄骨鉄筋コンクリート造 地下2階、地上8階 |
| 延床面積 | 2,694.75㎡(875.79坪) |
| 設備 | 駐車場18台(機械式)、エレベーター2台 |
| 竣工年月 | 昭和61年10月 |
| 設計 | 入江三宅設計事務所 梶建築設計事務所 |
| 施工 | 株式会社竹中工務店 |
| 備考 | 信託受益権所有(区分所有建物) |
| お問合せ先 | ビル営業部 |
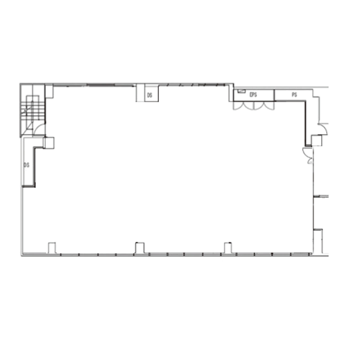
| 基準階図面 |



